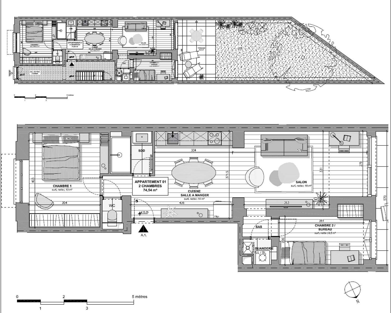
Terrace surface
20 m²
Living surface
75 m²
Bedrooms
2
Bathrooms
1
Etterbeek Thieffry - Montgomery, Victoire Junot offers you this superb ground floor apartment of ± 75m² in a small, fully and extensively renovated condominium comprising 3 apartments. It offers beautiful living spaces including a living room with access to the south-west facing terrace (20m²) and garden. Fully equipped kitchen, bedroom (13m²), shower room, separate WC, study or second bedroom 8.5m², individual gas boiler, laundry room, cellar and bicycle storage room in the basement. This flat will charm you with the quality of its renovations and its privileged location. EPC C+. Possibility to rent a covered parking space at no. 123.