menu

Lot 1 - Superbe triplex NEUF avec jardin, pas de TVA

€ 1.295.000 Uccle REF. 7145293

Description


bewoonbare opp

Surface habitable

228.5 m²

slaapkamers

Chambres à coucher

4

badkamers

Salle de bains

3

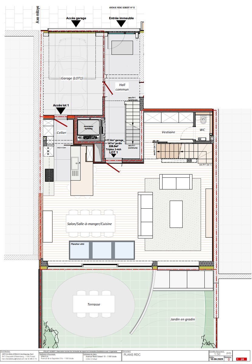
garages

Garages

1

Lot 1 - Superbe triplex NEUF avec jardin, pas de TVA

location Adresse sur demande

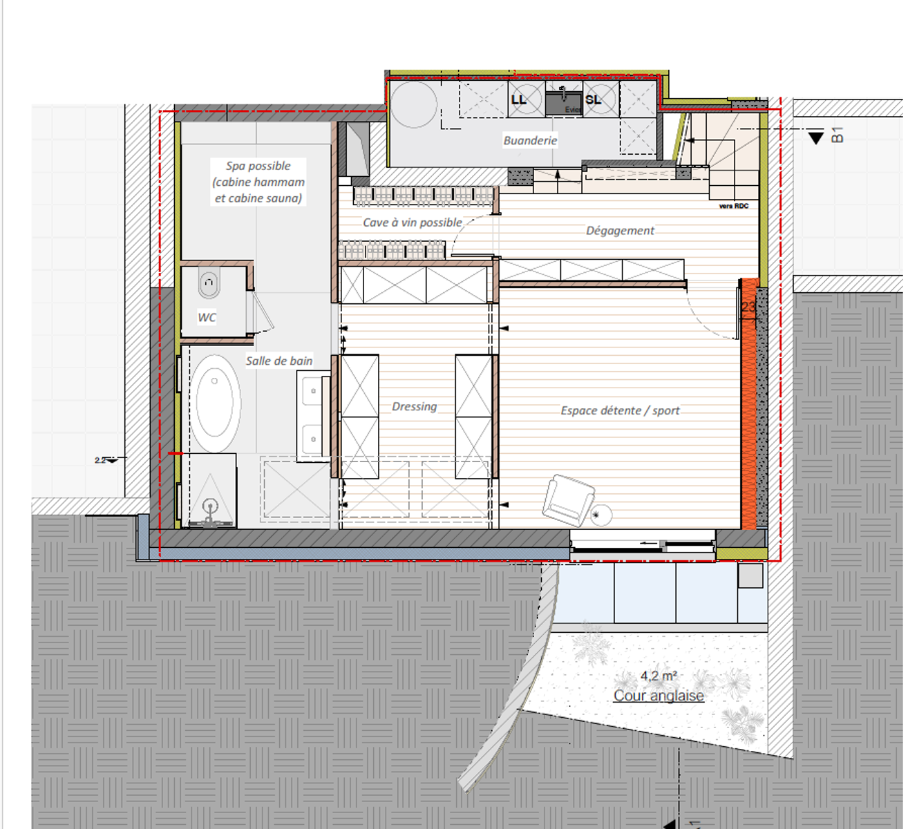
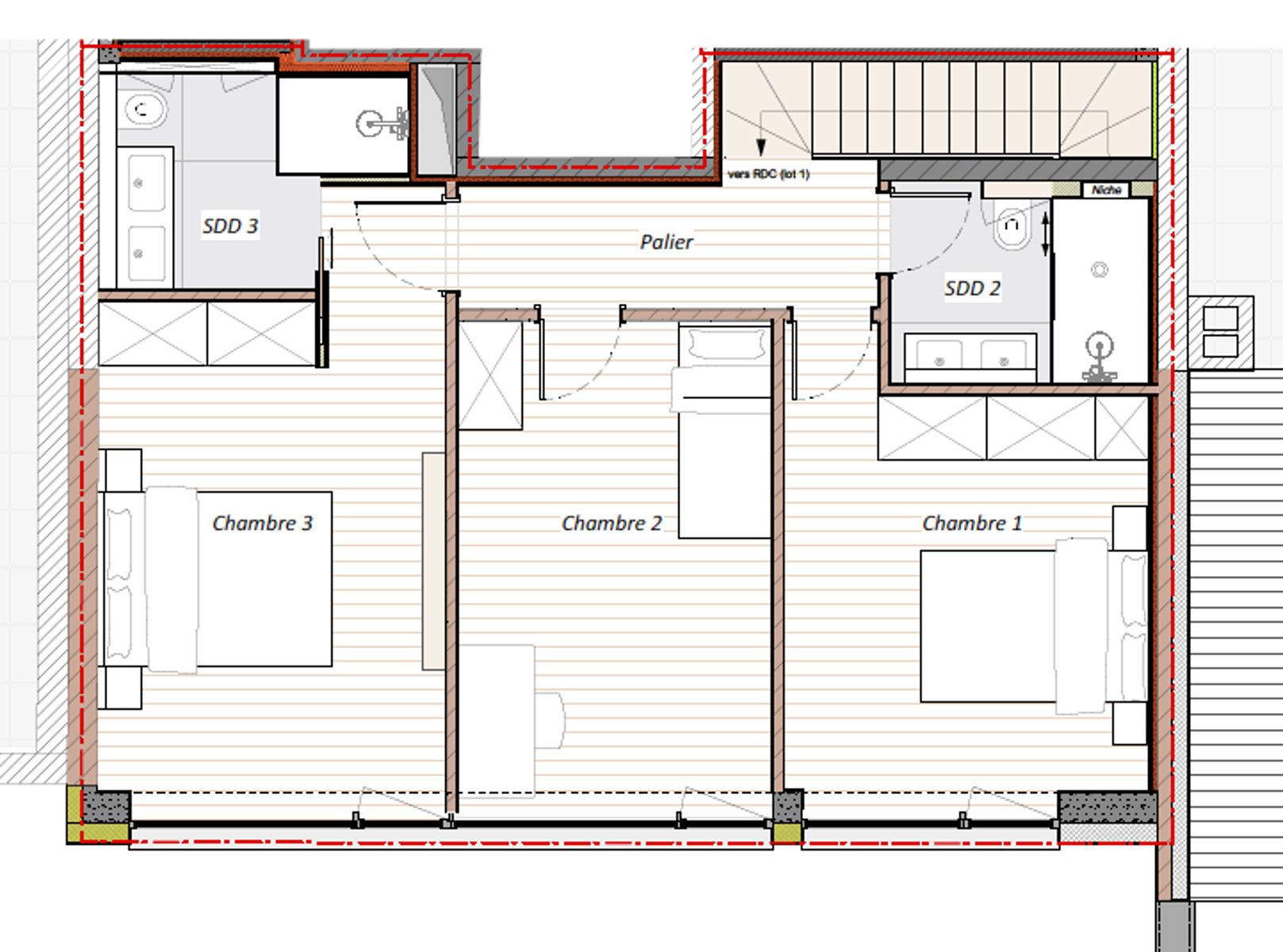
SOUS OPTION !!! Profitant d’un emplacement exceptionnel dans le très recherché quartier Floride, à deux pas du Bois de la Cambre, Victoire-Junot vous propose ce superbe triplex d’une superficie totale de ± 230 m², prolongé par un magnifique jardin privatif d’environ 150 m². Situé dans un immeuble récemment rénové avec des matériaux de très haute qualité, ce bien rare conjugue à la perfection élégance contemporaine, confort moderne et environnement verdoyant. Baigné de lumière grâce à de larges ouvertures, l'appartement s’ouvre sur un spacieux espace de réception, intégrant une cuisine ouverte sur mesure parfaitement équipée et donnant un accès direct au jardin, véritable prolongement naturel de l’espace de vie. Un vestiaire discret et des toilettes invités complètent cet étage. À l'étage supérieur, l’espace nuit se compose de trois chambres aux belles proportions ainsi que de deux salles de bains soigneusement aménagées. À l'étage inférieur, un très bel espace polyvalent peut faire office de quatrième chambre, de bureau ou de salle de loisirs, et bénéficie d’un vaste dressing, d’une salle de bains complète ainsi que d’une buanderie. L’appartement bénéficie de prestations de standing telles que la climatisation, des panneaux solaires, une cave privative, un local à vélos équipé de prises de recharge, ainsi qu’un ascenseur desservant tous les niveaux. Un box de garage est également disponible à l'acquisition en supplément. L’ensemble est soumis aux droits d’enregistrement. Alliant confort, qualité de vie et situation privilégiée, ce bien rare constitue une opportunité unique dans un cadre résidentiel prisé, à proximité immédiate des écoles internationales, des commerces et des transports.

Photos

René Gobert - Triplex arrière - Lot 1 pic 1 enlarge René Gobert - Triplex arrière - Lot 1 pic 2 enlarge René Gobert - Triplex arrière - Lot 1 pic 3 enlarge René Gobert - Triplex arrière - Lot 1 pic 4 enlarge René Gobert - Triplex arrière - Lot 1 pic 5 enlarge

Caractéristiques

Caractéristiques

Général

toggle toggle
Type appartement
Commune Uccle
Le prix € 1.295.000
Surface habitable 228.5 m²
Chambres à coucher 4
Salle de bains 3
Garages 1
Année de construction 2025
État Excellent état
Surface du jardin 147 m²
Façades 2
Cuisine (type) amer. super-équipée
Toilettes 2
Buanderie check
Chauffage (type) collectif
Chauffage pompe à chaleur
Ascenseur check
Double vitrage check

Informations obligatoires

toggle toggle
Permis de construire Non annoncé
Sommation et demande de recouvrement Non annoncé
Destination urbaine Non annoncé
Droit de préemption Non annoncé
Permis de lotissement Non annoncé
overstromingsgevoelig gebied Zone inondable Non annoncé

Financier

toggle toggle

Partager


René Gobert - Triplex arrière - Lot 1

Contactez-nous

Êtes-vous intéressé par cette propriété?
Organisez une visite ou demandez plus d'informations

VICTOIRE JUNOT - Uccle Vente

info@victoire.be
+32 2 375 10 10

Plus d'infos arrow

Propriétés similaires

Vendre ou louer votre maison?

Vendre ou louer votre maison?

Demandez votre estimation
X
Voir les favoris
favorieten